過剰な装飾を排し、
光と時間が描く“余景”を設計する。
ただの住まいではなく、
“光と時間がつくる風景”を感じていただける家。
D’s HOMEが提案する新しい平屋が、
いよいよ丸亀に誕生しました。
見学予約随時受付中。
完全予約制にて、ゆっくりとご案内いたします。

ヨケイモデルの
予約をしたいのですが...
とお気軽にお電話ください。
期間限定 豪華キャンペーン開催中!

モデルハウスオープン記念キャンペーン
期間中にご来場&設計契約をしていただいたお客様に
太陽光発電5kW相当をプレゼント!!
期間:12月1日 – 2月28日
条件:上記期間中にご来場いただき、設計契約をしていただいたお客様
数に限りがあり先着順となります。

光と植栽がつくる時間の表情
直線的なフォルムと抑えた素材構成が、植栽の影や太陽の
角度によって豊かな表情を生み出す。
朝は柔らかく、昼は鮮明に、夕刻には長く伸びる影が
外壁を撫で、夜には照明と植栽のシルエットが浮かび上がる。
一日の光の移ろいを建築が受け止め、時間そのものが外観を彩るデザインとした。
装飾ではなく、陰影と反射で語る外観。
それが、YOKEIの「光を映す器」としての佇まいである。





窓がつくる、静かな余景
大開口ではなく、あえて絞り込んだ開口計画。
時間帯によって光の入り方が変わり、室内に“動く光の余白”が生まれる。
ダイニング横の窓は、外へ大きく開くのではなく、あえて風景を絞り込むことで
丸亀城の姿を“ひとつの絵画”のように切り取る役割を持つ。
季節や天候によってその輪郭は変わり、日常に静かな移ろいを添えてくれる。
この窓は、ただ眺めるためだけでなく、“光と時間を設計する”ためのもの。
風景と光が溶け合う瞬間が、暮らしの中にさりげない“余景”を描き出す。


公と私をつなぐ静かな流れ
キッチン・洗面・ランドリーを最短距離で結ぶ効率的な動線。
一方で、LDKなどのパブリック空間と、寝室・水廻りなどのプライベート空間をゆるやかに分
ける構成とした。
生活の“流れ”の中に、光の通り道と余白の間(ま)を設けることで、動線そのものが静けさ
を感じさせる体験へと変わる。




“余景”とは、光が過ぎたあとの静けさ、
そして暮らしに残る美しい余韻。
静けさの中に、光が呼吸するように漂い、
空気の温度さえもやわらかく変えていく。
余白に漂う光が、
日常のひとこまを詩のように照らし出す。
その先に浮かぶ丸亀城が、
この家の時間を静かに刻みはじめる ー
ヨケイモデルの
予約をしたいのですが...
とお気軽にお電話ください。
希望日前日の17時以降、および当日のご予約は連絡不行き届きの可能性がございますので、お電話でのご連絡をお願いしております。
なお、当日ご予約の場合、ご希望に添えない可能性がございますので、あらかじめご了承の上お問い合わせくださいませ。
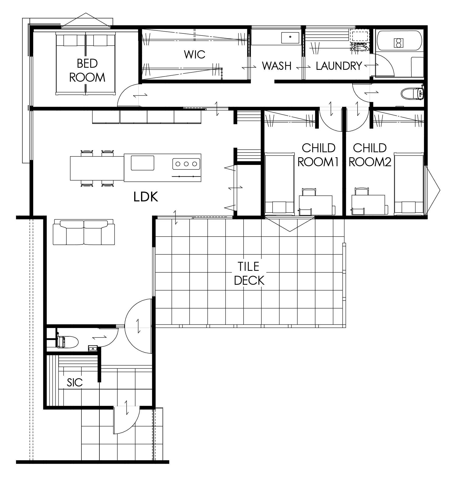
FLOOR PLAN




- 延床面積:107.23㎡ / 32.44坪
- 敷地面積:253.82㎡/ 76.78坪
ご来場特典

モデルハウス見学後、
「もう少し詳しく家づくりの話を聞いてみたい」と感じていただけた方へ。
はじめてご来場のうえ、
次回の家づくりに関する個別相談のご予約をいただいた方に
Amazonギフトカードをプレゼントいたします。
特典内容
- Amazonギフトカード 5,000円分
適用条件
以下すべてを満たす方が対象となります。
- 当社モデルハウスへ初めてご来場の方
- 2月28日までにご予約をいただいた方(ご来場は3月でもOK)
-
モデルハウス見学後、家づくりの具体的なご相談(間取り・土地探し・資金計画など)を行う次回のお打合せをご予約いただいた方
プレゼントについて
-
次回のお打合せ時にお渡しいたします
- 1組様1回限り